Défiler au contenu
LAUSANNE RIVE-SUD 1

Spécifications

  • 3

    Chambre(s)

  • 2

    Salle de bain(s)

  • 2

    Étage(s)

  • Non

    Garage

  • 1482 pi2

    Superficie

Entrée séparée

La configuration permet plus d'intimité avec l'aire de vie.

3 chambres

La maison contient 3 chambres séparées

Buanderie

Le plan du rez-de-chaussée prévoit une salle de lavage séparée.

Plans et configuration

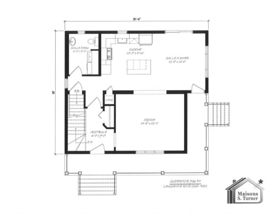
LAUSANNE RIVE-SUD PLAN RDC
LAUSANNE RIVE-SUD PLAN S-S

Rez-de-chaussée

  • Cuisine
  • 10’-7’’ x 8’-11’’
  • Séjour
  • 14’-6’’ x 12’-0’’
  • Salle d’eau
  • 6’-2’’ x 8’-5’’
  • Salle à manger
  • 11’-8’’ x 12’-0’’

Étage

  • Chambre 1
  • 14’-11’’ x 11’-10’’
  • Chambre 2
  • 11’-5’’ x 9’-3’’
  • Chambre 3
  • 9’-0’’ x 12’-5’’
  • Salle de bain
  • 9’-9’’ x 8’-5’’

Modèles similaires

Voir tous les modèles