Défiler au contenu
CHÂTEAUNEUF 1

Spécifications

  • 4

    Chambre(s)

  • 3

    Salle de bain(s)

  • 2

    Étage(s)

  • Non

    Garage

  • 2478 pi2

    Superficie

Entrée séparée

La configuration permet plus d'intimité avec l'aire de vie.

3 chambres

La maison contient 3 chambres séparées

Buanderie

Le plan du rez-de-chaussée prévoit une salle de lavage séparée.

Plans et configuration

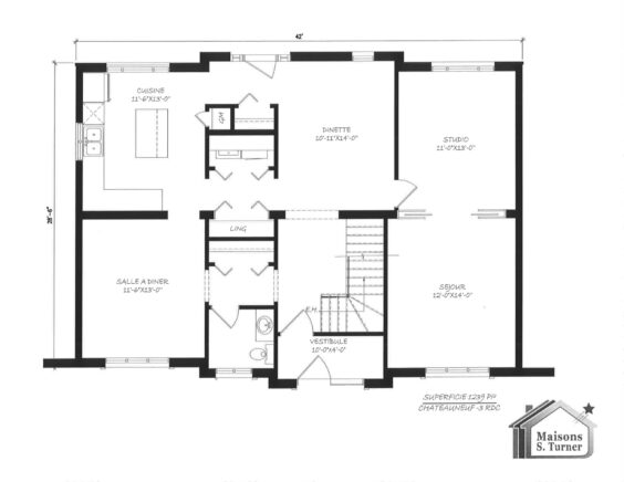
CHÂTEAUNEUF PLAN RDC
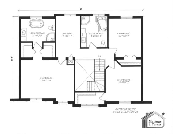
CHÂTEAUNEUF PLAN ÉTAGE

Rez-de-chaussée

  • Cuisine
  • 11’-6’’ x 13’-0’’
  • Séjour
  • 12’-0’’ x 14’-0’’
  • Dinette
  • 10’-11’’ x 14’-0’’
  • Salle à manger
  • 11’-6’’ x 13’-0’’
  • Studio
  • 11’-0’’ x 13’-0’’

Étage

  • Chambre 1
  • 18’-0’’ x 13’-0’’
  • Chambre 2
  • 11’-0’’ x 13’-0’’
  • Chambre 3
  • 12’-0’’ x 11’-7’’
  • Salle de bain 1
  • 11’-6’’ x 7’-7’’
  • Salle de bain 2
  • 8’-11’’ x 10’-8’’
  • Boudoir
  • 8’-1’’ x 14’-0’’

Modèles similaires

Voir tous les modèles