Défiler au contenu
CHAMBÉRY 1

Spécifications

  • 2

    Chambre(s)

  • 1

    Salle de bain(s)

  • 1

    Étage(s)

  • Non

    Garage

  • 1375 pi2

    Superficie

Entrée séparée

La configuration permet plus d'intimité avec l'aire de vie.

Grande fenestration

Surface d'ouverture généreuse offrant une grande luminosité naturelle

Intimité

L'aire ouverte sur l'arrière procure un sentiment de déconnection avec la vie urbaine.

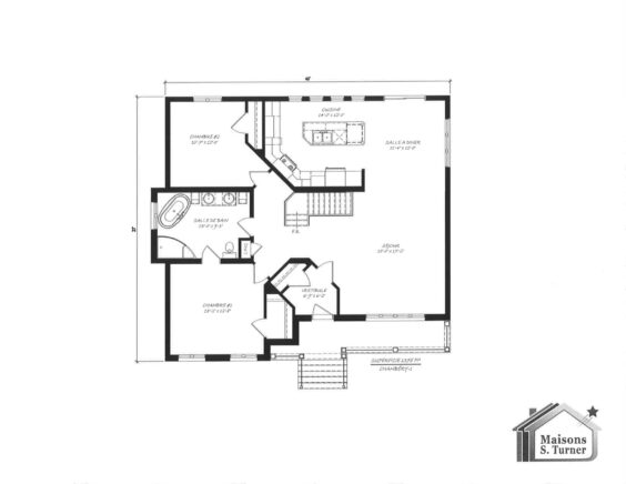
Plans et configuration

CHAMBÉRY PLAN

Rez-de-chaussée

  • Cuisine
  • 14’-0’’ x 12’-0’’
  • Séjour
  • 15’-0’’ x 17’-2’’
  • Salle à manger
  • 11’-4’’ x 12’-0’’
  • Chambre 1
  • 13’-2’’ x 12’-8’’
  • Chambre 2
  • 10’-7’’ x 12’-0’’
  • Salle de bain
  • 13’-0’’ x 9’-3’’

Modèles similaires

Voir tous les modèles